The Rue Notre-Dame du Sommeil is located halfway between the canal zone busy with regeneration in full swing, and the bustling city-center criss-crossed with overloaded boulevards.
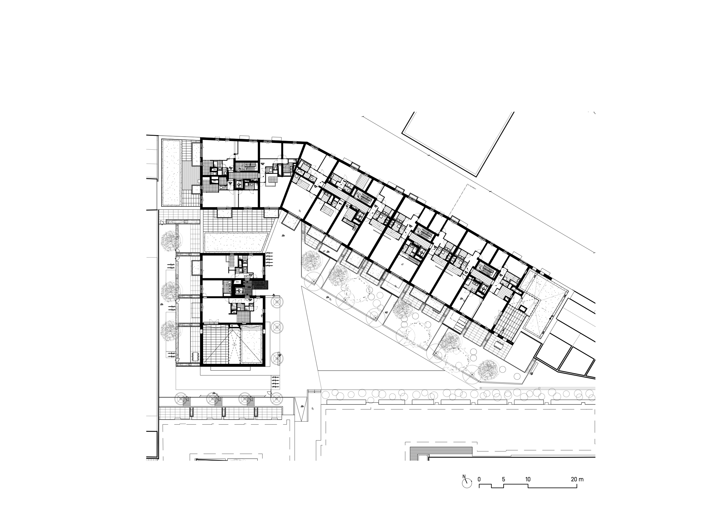
So street views show that surprisingly, this little winding street nestled between the two is able to rely on its own intimate scale to create quiet pockets of breathing space, as the numerous semi-open street intersections bear witness. The Clos du Marais easily fits into this urban fabric, offering yet another breather in the form of a semi-public garden (a “clos”) accessible through a double-height porch. Once you walk in leaving the street-scape behind, you are in a different world. Wide terraces are organized around the generously planted haven, but also communal spaces, a day-care center, open-air stairwells and the bicycle locale.
The wide scope of residential units, large and small with varying layouts, plays an active role in encouraging diversity in the neighbourhood. Easy access to public transport, low heating bills due to passive measures, and amenities such as the day-care center should confirm the trend.
A bird’s eye view of the block offers insight into the great variety of existing built forms present: imposing industrial roofs of all shapes and sizes, small sloped roofs of working class housing, high ‘hollow-toothed ’chimneys … The project slips into this aerial kaleidoscope through its own hop-scotch of roofs: flat or sloped, with or without terraces carved in, covered in natural zinc or green and planted, … each particular geometry contributing to the bigger recognizable picture.
Developed by Besix Red / Crédit photo : © Utku PEKLI
Canal District
2013 - 2018
Construction of a housing complex, day-care centre, and park rue de la Senne in Brussels
Streetview
- Site
- Rues Notre Dame du Sommeil, des Fabriques et de la Senne 1000 Brussels
- Client
- Besix RED
- Collaborators
- Axcent
- Structural engineering
- ABCIS Van Wetter
- Services engineer
- Concept Control
- Contractor
- Jacques Delens
- Surfaces
- 18 799 m² above ground level and 3 100 m² below ground level
- Budget
- 22 000 000 € htva