Moxy Hotel Navona

2018 - 2026

Conversion of an office building into a hotel Culliganlaan in Diegem

Site
Culliganlaan 1C 1831 Diegem
Client
Cayman Group
Structural engineering
CSD
Services engineer
ISTEMA
Interior designers
Creneau international
Surfaces
4 900 sqm above ground level and 1 750 sqm below ground level
Budget
7.000.000 € htva

Complete description

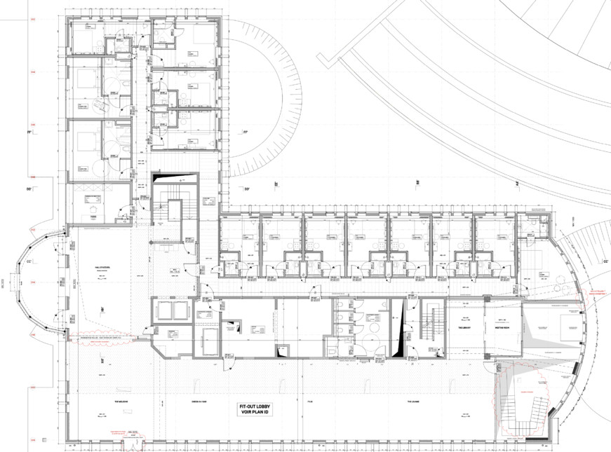
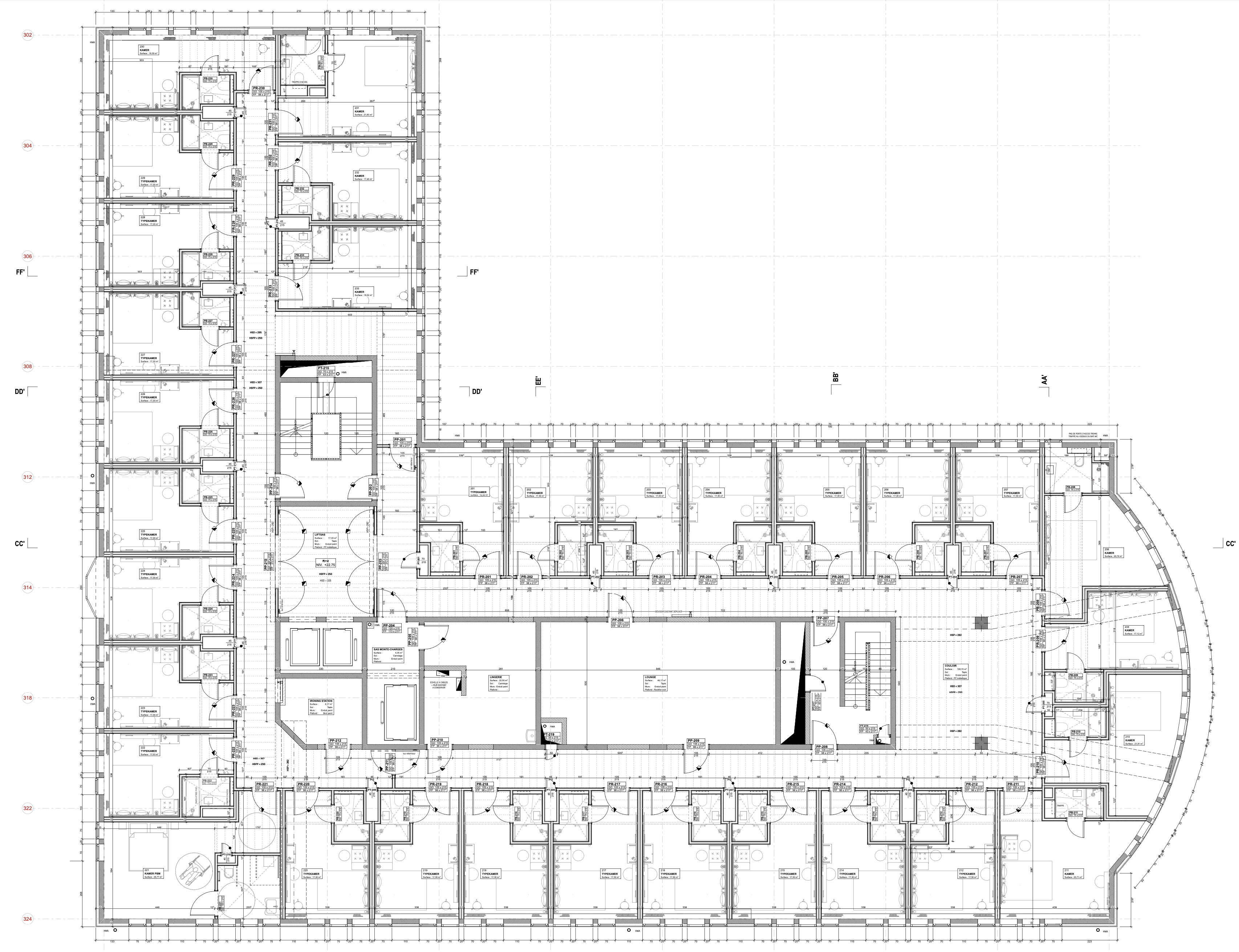
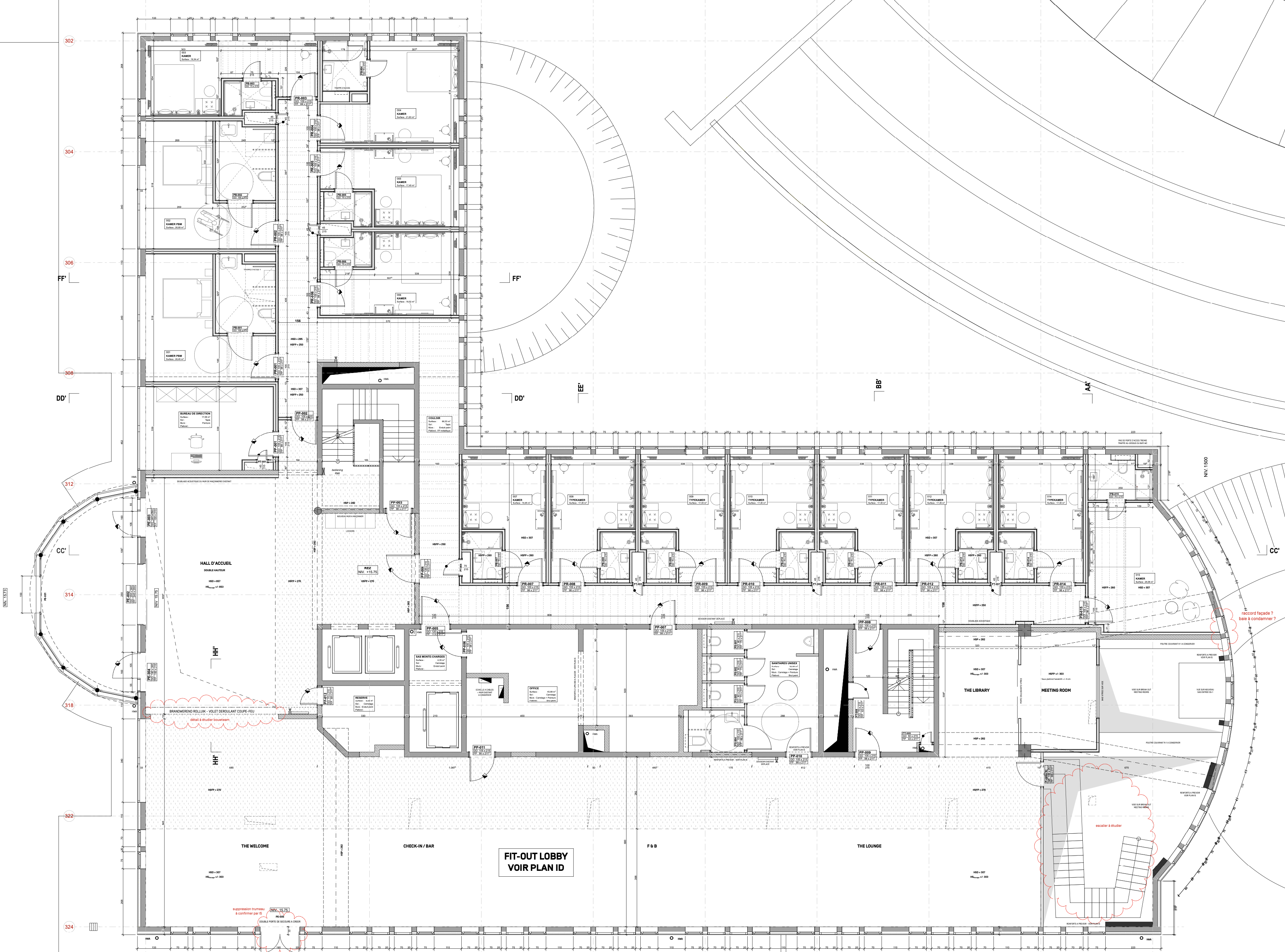
Located just 3 km from Brussels Airport, the Navona 300 building in Diegem is undergoing a bold transformation from an outdated office structure into a vibrant 3-star Moxy Hotel. Part of the Twin Squares business complex, the reconversion project respects the original building envelope while reimagining its interior to accommodate 137 hotel rooms, including 6 accessible units, along with dynamic shared spaces and 95 underground parking spots.

Originally built in 2005 and vacant for several years, the structure formerly hosted Sanofi Belgium. The redevelopment integrates the global Moxy brand—Marriott International’s youthful and design-forward hospitality concept—with the local expertise of Cayman Hospitality, a Belgian hotel group managing 12 properties across the country.

Crucially, the architectural intervention preserves the building’s original beige stone façade and zinc roof, maintaining harmony with the surrounding office blocks. This strategic reuse approach not only minimises the project's environmental impact but also aligns with the local urban and spatial development plans for Diegem South's international office and hotel zone.

The Moxy concept - devellopped in assoctiation with Creneau Internatonal - is all about smart comfort, urban flair, and playful design at accessible prices. The ground floor welcomes guests with an open-plan lobby featuring a 24/7 bar, breakfast area, meeting spaces, and access to a terrace. The -1 level houses a fitness room and staff facilities, while the top floor hosts technical spaces. Every design decision supports fluid movement, accessibility, and user experience, from barrier-free circulation to optimised fire safety strategies.
With seamless connections to train, tram and bus lines, Moxy Diegem aims to serve both business travellers during the week and city trippers on weekends—bringing new life and activity to this well-situated site.